
全國統一服務熱線
135 1830 6292
199 8199 2289
188 8046 6251
132 8135 3888
地址:成都成華區融錦城3棟1102 ??? 綿陽經開區萬達CBD-310
體驗一番田園派的生活
日期:2018-07-15
在一片青空群山中納一塊土地,周圍皆是綠植,抬眼便是沃土;不說采菊東籬下,但也希望能過上悠然閑適的田園派生活。

這棟資陽輕鋼別墅立面造型別致美觀,細節處皆為精心設計;栗色典雅別致,象牙白素凈靈動,再搭配上立面感強烈的外觀造型,宛如童話故事里出現的炊煙田舍,帶著幾絲英式小墅的繁復秀麗,又有幾分簡約隨性。在這鄉村田野中,這棟四川輕鋼別墅默默展現著自己的個性,又不顯得刻意嬌作。

還可以在四川輕鋼別墅的周圍種上幾株花樹,花開自成美景。而在樹木掩映下的別墅,更具生活氣息;門口懸掛的兩盞紅燈籠,是中國人民對生活最直接的熱情與期盼。

資陽輕鋼別墅 架空層平面圖:
利用宅基地地形優勢,設計一個架空層。作為車庫的同時打造幾間儲藏室,方便家中雜物的擺放;空曠的地方作為娛樂室,家中來客或是家人娛樂的絕佳休閑之地。

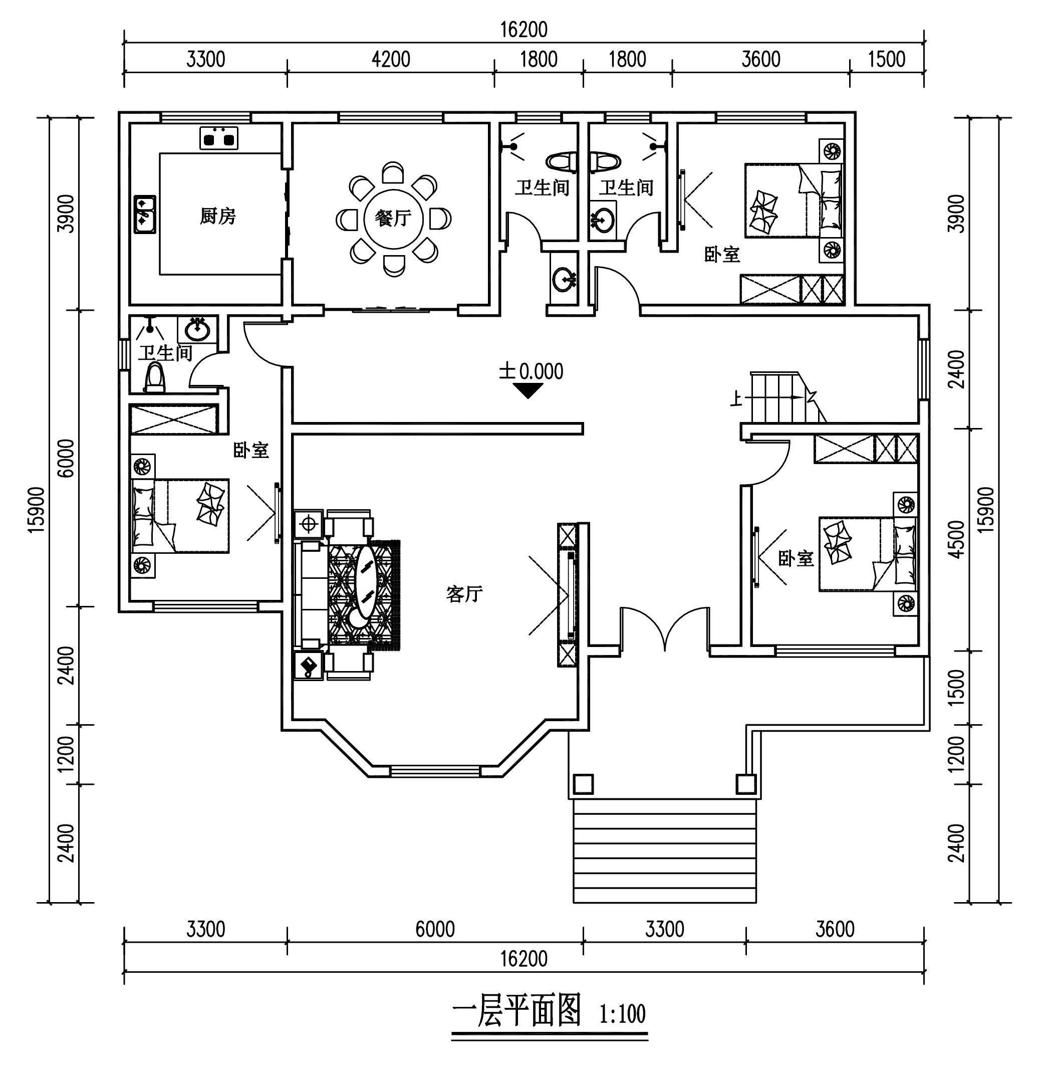
資陽輕鋼別墅 一層平面圖:
大客廳設計顯得整個室內寬敞通透;設計一個弧形窗,溫暖的陽光便能通過窗戶灑落家中,暖洋洋的居住生活。

資陽輕鋼別墅 二層平面圖:
寬敞的占地面積無需委屈自己,盡情打造舒適的室內,功能房一應俱全。

資陽輕鋼別墅 三層平面圖:

每層樓均設計了一個帶套衛的臥室,方便家人生活。
晾曬房設計十分人性化,既保證了晾曬衣物的衛生與私密,又打造了露臺的美觀外景。
上一篇:資陽輕鋼別墅房屋使用壽命是多少年? 下一篇:有優勢必然被肯定




