產品展示

全國統一服務熱線
135 1830 6292
199 8199 2289
188 8046 6251
132 8135 3888
地址:成都成華區融錦城3棟1102 ??? 綿陽經開區萬達CBD-310
綿陽輕鋼別墅--簡約鄉村別墅
日期:2018-10-22

本棟綿陽輕鋼別墅,外觀設計時尚,顏色搭配亮眼。


一層布局主次臥兩間臥室,單獨的飯廳,寬敞的客廳,入戶設計一條走廊,是整棟綿陽輕鋼別墅的亮點所在。

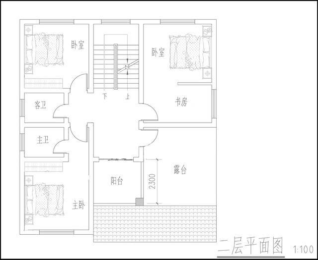
二樓設計三個房間及一個書房,功能齊全,搭配一大一小兩個露臺,更顯乘涼晾曬游刃有余。
四川居久家輕鋼別墅,每一棟別墅都自主設計,在保證結構安全的情況下,盡量按照客戶需求設計,每一棟輕鋼別墅都是不一樣的別墅。
上一篇:四川輕鋼別墅-中式現代 下一篇:四川輕鋼別墅--歐式典雅




