產品展示

全國統一服務熱線
135 1830 6292
199 8199 2289
188 8046 6251
132 8135 3888
地址:成都成華區融錦城3棟1102 ??? 綿陽經開區萬達CBD-310
四川輕鋼別墅-綿陽美式簡約
日期:2018-10-10
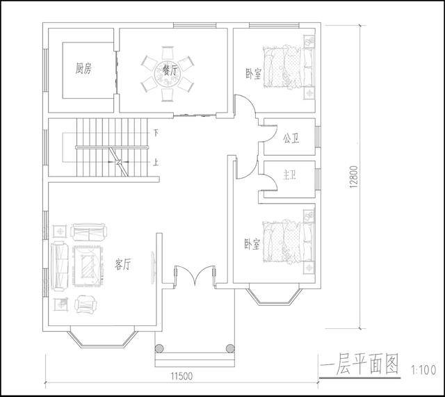
該套綿陽輕鋼別墅,是有四川居久家輕鋼別墅修建在綿陽地區的別墅,采用紅色的瀝青瓦寓意“鴻運當頭”


該套輕鋼別墅,門廳以及整正面和右側面,左邊部分側面,都有延長出來的屋檐造型。

綿陽輕鋼別墅 帶有5個臥室一個露臺,完全滿足了客戶的需求

四川居久家輕鋼別墅,致力于打造安全的結構,漂亮的外觀,精細的工藝,以達到一套高水準的輕鋼別墅
上一篇:四川輕鋼別墅-經典法式 下一篇:四川輕鋼別墅-中式現代




